header-logo2.png MAS SERVICE

In affitto  MONTAGNOLA Attico Bilocale Piazzale Roberto Ardigò

Piazzale Roberto Ardigò, 00142, Roma (Rm)  • Ardeatino, Montagnola

€ 1.350,00/mese

  • Novità

Descrizione

MONTAGNOLA e più precisamente in Piazzale Roberto Ardigò proponiamo Attico Bilocale di 54 mq. ca., completamente e finemente Ristrutturato, arredato e corredato, posto al 6° ed ultimo Piano in uno stabile signorile, con ascensore, servizio di portineria intera giornata, oltre ad un ascensore dedicato per la raccolta differenziata dei rifiuti.
Ubicato in un contesto residenziale tranquillo ma allo stesso tempo funzionale data la vicinanza dei principali servizi, tra cui supermercati, negozi, scuole, banche, uffici e aree verdi, oltre ad essere ben collegata dai mezzi pubblici con diverse linee urbane come 160, 669, 670, 671, C8 e 716 che collegano la zona ai quartieri Montagnola, San Paolo, Garbatella e direttrici verso il centro. La metro B è raggiungibile a piedi o tramite bus, con la stazione Marconi a circa 10 minuti di cammino.
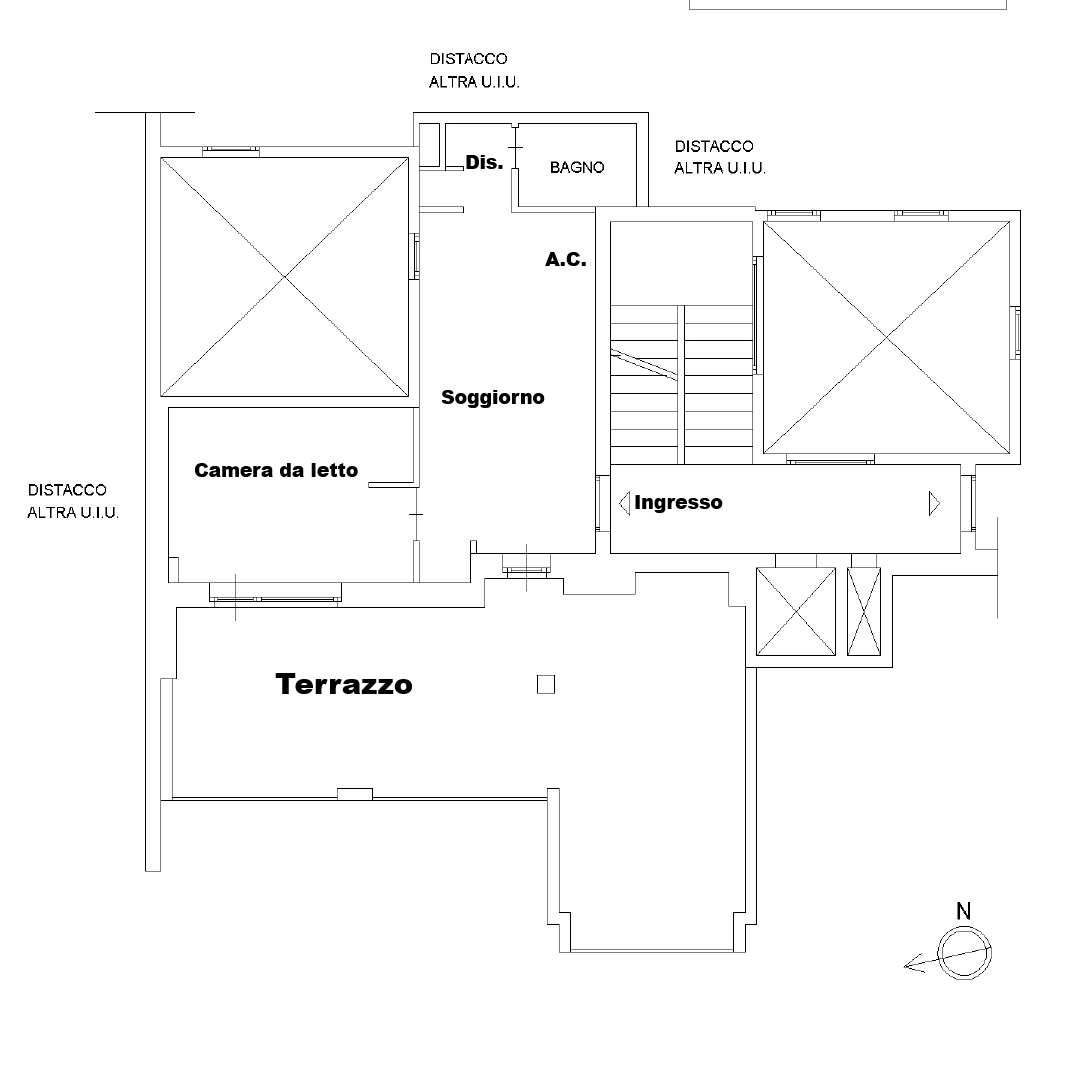
L'immobile è così composto: Ingresso su soggiorno con angolo cottura, Camera da letto, Disimpegno con zona lavanderia e Bagno cieco con box doccia, grande Terrazzo vivibile con vista panoramica.
Il Riscaldamento è centralizzato con contabilizzatori di calore, impianto di climatizzazione freddo caldo, infissi in doppio vetro PVC, controsoffitto con faretti LED, grate di sicurezza.
Le spese di Condominio ammontano a € 100,00 ca. mensili, comprensive di riscaldamento e acqua, salvo conguagli.
Possibilità che la proprietà realizzi una pergotenda: salotto d'inverno finemente arredato ad un prezzo extra.
Il Contratto è 4+4 a con canone libero oppure Contratto Transitorio max 18 mesi. Solo Referenziati con Redditi Dimostrabili. 
Per autocertificazione Cliente clicca sul seguente link https://www.soloaffittipay.it/referral/register?rpm=92
Per ulteriori informazioni contattare Agenzia SOLO AFFITTI Roma 9 con sede in Viale Della Grande Muraglia 144/146 – EUR Torrino – Tel. 06.5204273 sito: www.mscasa.it | www.soloaffitti.it/agenzie/roma9.it – Email: roma9@soloaffitti.it | soloaffittiroma9@mscasa.it #AFFITTA IN SICUREZZA Proteggi il tuo#affitto con #Affittosicuro #TutelaUno #TutelaEstesa #SoloAffiittiPay

Dettagli Immobile

  • Codice :

  • Tipo :

  • Categoria :

  • Anno Immobile :

  • Locali :

  • Sup.Immobile :

  • A1336

  • Bilocale

  • Appartamento

  • 1970

  • 2

  • 54 m²

  • Prezzo :

  • Località :

  • Tipologia :

  • Piano :

  • Piani dello Stabile :

  • Bagni :

  • 1.350,00€

  • Roma • Ardeatino, Montagnol

  • Appartamento

  • Settimo piano

  • 7

  • 1

Caratteristiche specifiche

  • Esposizione :

  • Luminosità :

  • Rifiniture :

  • In Condominio :

  • Panoramica

  • Luminoso

  • Moderne

  • Si

  • Angolo Esposizione :

  • Ascensore :

  • Classe Immobile :

  • Arredamento :

  • Ovest

  • Si

  • Signorile

  • Si

Informazioni Giuridiche e Costi

  • Contratto di :

  • Stato Giuridico :

  • Tipo Catastale :

  • Affitto

  • Libero

  • A/2

  • Tipo Contratto :

  • Data disponibilità :

  • Costo Condominio :

  • Incarico di Affitto

  • 02/2026

  • 100.00 €

Efficienza Energetica

  • Stato Immobile :

  • Riscaldamento :

  • Classe Energetica :

  • Ristrutturato

  • Centralizzato

  • In attesa di

  • Stato Stabile :

  • Climatizzazione :

  • Normale

  • Climatizzato

Immobili Correlati

Nuovi

Appartamento

MONTAGNOLA Trilocale Via Fonte Buono 104

Via Fonte Buono 104, 00142, Roma (RM)

Partners e Affiliazioni

Per i nostri clienti ci affidiamo ai migliori strumenti e servizi. Unità, professionalità, condivisione.

1.png
2.png
3.png
4.png