header-logo2.png MAS SERVICE

In affitto  EUR Bilocale Viale Umberto Tupini

Viale Umberto Tupini , 00144, Roma (RM)  • Eur

€ 1.400,00/mese

  • Novità

Descrizione

DISPONIBILE DAL 1° GIUGNO 2026
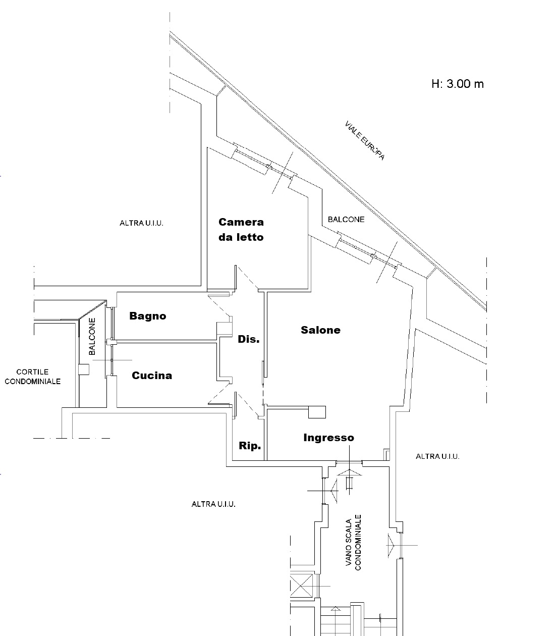
Nel cuore del prestigioso quartiere EUR e precisamente in Viale Umberto Tupini, in un contesto signorile e a pochi passi dalla scalinata dei Santi Pietro e Paolo, proponiamo appartamento Bilocale di 78 mq. ca., completamente arredato, posto al 1° Piano in uno stabile in cortina di 5 Piani con ascensore.
L’area si distingue per l’eleganza degli spazi urbani, l’ampiezza dei viali alberati e la presenza di numerosi servizi, oltre alla vicinanza di uffici, attività commerciali, ristoranti, scuole e aree verdi e adiacente al laghetto dell’EUR, ottimamente collegata grazie alla linea B della metropolitana e a diverse linee di trasporto pubblico.
L'immobile è così composto: Ingresso, Soggiorno, Cucina abitabile, Disimpegno con armadio a muro, Camera da letto, Bagno con finestra e box doccia, Balcone.
Il Riscaldamento è autonomo, porta blindata, impianto di climatizzazione freddo/caldo, infissi in doppio vetro legno, tende da sole, serrande elettriche, luce di emergenza.
Le spese di condominio ammontano a € 80,00 ca. e sono comprensive dell'acqua fredda sanitaria.
Contratto Transitorio 12/18 mesi con Cedolare Secca. Sono richieste 2 mensilità di deposito cauzionale. Solo Referenziati con Redditi Dimostrabili. E' richiesta Tutela Affitto Sicuro.
Per autocertificazione Cliente clicca sul seguente link https://www.soloaffittipay.it/referral/register?rpm=92 Per ulteriori informazioni contattare Agenzia SOLO AFFITTI Roma 9 con sede in Viale Della Grande Muraglia 144/146 – EUR Torrino – Tel. 06.5204273 sito: www.mscasa.it | www.soloaffitti.it/agenzie/roma9.it – Email: roma9@soloaffitti.it | soloaffittiroma9@mscasa.it #AFFITTA IN SICUREZZA Proteggi il tuo#affitto con #Affittosicuro #TutelaUno #TutelaEstesa #SoloAffiittiPay

Dettagli Immobile

  • Codice :

  • Tipo :

  • Categoria :

  • Anno Immobile :

  • Locali :

  • Sup.Immobile :

  • A1341

  • Bilocale

  • Appartamento

  • 1958

  • 2

  • 78 m²

  • Prezzo :

  • Località :

  • Tipologia :

  • Piano :

  • Piani dello Stabile :

  • Bagni :

  • 1.400,00€

  • Roma • Eur

  • Appartamento

  • Primo piano

  • 5

  • 1

Caratteristiche specifiche

  • Esposizione :

  • Luminosità :

  • Rifiniture :

  • In Condominio :

  • Esterna

  • Luminoso

  • Moderne

  • Si

  • Angolo Esposizione :

  • Ascensore :

  • Classe Immobile :

  • Arredamento :

  • Sud Est

  • Si

  • Signorile

  • Si

Informazioni Giuridiche e Costi

  • Contratto di :

  • Stato Giuridico :

  • Tipo Catastale :

  • Affitto

  • Libero

  • A/2

  • Tipo Contratto :

  • Data disponibilità :

  • Costo Condominio :

  • Incarico di Affitto

  • 04/2026

  • 80.00 €

Efficienza Energetica

  • Stato Immobile :

  • Riscaldamento :

  • Classe Energetica :

  • Ottimo stato

  • Autonomo

  • Classe E

  • Stato Stabile :

  • Climatizzazione :

  • Normale

  • Climatizzato

SoloAffitti | Eur -Torrino - Mostacciano

Contatti Agenzia

Visti di recente

Immobili Correlati

Nuovi

Appartamento

MOSTACCIANO A Pentalocale Via Michelangelo Peroglio 26

Via Michelangelo Peroglio 26, 00144, Roma (Rm)

Appartamento

TORRINO SUD Bilocale Via Fiume Giallo

Via Fiume Giallo, 00144, Roma (RM)

Appartamento

EUR Bilocale Viale Del Ciclismo

Viale Del Ciclismo, 00144, Roma (RM)

Appartamento

EUR Bilocale Via Australia

Via Australia, 00144, Roma (Rm)

Appartamento (Attico)

TORRINO SUD Attico Bilocale Via Nanchino

Via Nanchino, 00144, Roma (RM)

Partners e Affiliazioni

Per i nostri clienti ci affidiamo ai migliori strumenti e servizi. Unità, professionalità, condivisione.

1.png
2.png
3.png
4.png