header-logo2.png MAS SERVICE

In vendita  TORRINO SUD Trilocale Via Nanchino

Via Nanchino, 00144, Roma (RM)  • Torrino Sud

€ 379.000,00

  • Novità

Descrizione

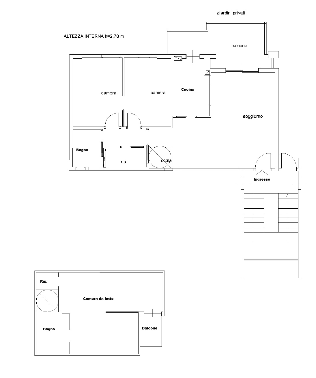
TORRINO SUD e più precisamente in Via Nanchino proponiamo appartamento Trilocale di 100 mq.ca., completamente ristrutturato nel 2017, posto su due livelli Piano 1° e 2°, quest'ultimo mansardato, in uno stabile in cortina di 2 Piani, senza ascensore.
Ubicato in un contesto residenziale tranquillo e ben curato, caratterizzato da palazzine immerse nel verde e da un’atmosfera riservata e silenziosa e allo stesso tempo vicino ai principali servizi di prima necessità: supermercati, negozi di quartiere, farmacie e attività commerciali. Il quartiere è ben collegato grazie alla vicinanza di importanti arterie stradali come Via Cristoforo Colombo e Via Pontina, oltre alla presenza di diverse linee di trasporto pubblico che collegano la zona con l’EUR e le principali fermate della metropolitana.
L'immobile è così composto: Ingresso su Soggiorno, Cucina semi abitabile, Disimpegno, 2 Camerette comunicanti, Bagno con finestra e box doccia, Ripostiglio, Balcone, scala per accedere al livello superiore con altezza di 2,20 mt., Camera da letto padronale mansardata, Bagno con box doccia, Ripostiglio e armadi a muro, Balcone.
Il Riscaldamento è autonomo, infissi in doppio vetro PVC, impianto di climatizzazione freddo/caldo, porta blindata, grate di sicurezza, tende da sole, videocitofono e le spese di Condominio ammontano a € 100,00 ca. mensili.
Completano la proprietà il Posto auto scoperto di 15 mq. ca. posto al Piano Terra e il Box auto di 18 mq. ca. posto al Piano Sottostrada, larghezza ingresso box auto 2,20 mt.
Vuoi sapere quanto vale la Tua Casa? Effettuiamo VALUTAZIONI GRATUITE con rilascio di relazione di stima dettagliata. Sede operativa in Viale Della Grande Muraglia 144/146 – EUR Torrino. Visita il nostro sito: www.mscasa.it . *Le presenti informazioni e planimetrie sono meramente indicative e non costituiscono elementi contrattuali. Per qualsiasi esigenza in merito alla vendita o acquisto di un immobile, non esitare a contattarci allo 06.52.04.273 Cell. 320.94.47.838 Email: frimm39160@gmail.com Social: LinkedIN, Facebook, Instagram. Ci siamo. Noi siamo di casa!

Dettagli Immobile

  • Codice :

  • Tipo :

  • Categoria :

  • Anno Immobile :

  • Locali :

  • Sup.Immobile :

  • V1443

  • Trilocale

  • Appartamento

  • 1987

  • 3

  • 100 m²

  • Prezzo :

  • Località :

  • Tipologia :

  • Piano :

  • Bagni :

  • 379.000,00€

  • Roma • Torrino Sud

  • Appartamento

  • Primo piano

  • 2

Caratteristiche specifiche

  • Esposizione :

  • Luminosità :

  • Rifiniture :

  • In Condominio :

  • Esterna

  • Luminoso

  • Moderne

  • Si

  • Angolo Esposizione :

  • Classe Immobile :

  • Arredamento :

  • Nord Sud Ovest

  • Signorile

  • No

Informazioni Giuridiche e Costi

  • Contratto di :

  • Stato Giuridico :

  • Tipo Catastale :

  • Vendita

  • Libero al rogito

  • A/2

  • Tipo Contratto :

  • Data disponibilità :

  • Costo Condominio :

  • Intera Proprietà

  • 04/2026

  • 100.00 €

Efficienza Energetica

  • Stato Immobile :

  • Riscaldamento :

  • Classe Energetica :

  • Ristrutturato

  • Autonomo

  • Classe D

  • Stato Stabile :

  • Climatizzazione :

  • Normale

  • Climatizzato

FRIMM | Eur -Torrino - Mostacciano

Contatti Agenzia

Visti di recente

Immobili Correlati

Nuovi

Appartamento

EUR Pentalocale Via Australia

Via Australia , 00144, Roma (Rm)

Appartamento

MOSTACCIANO B Trilocale Via Enrico Giachino 31

Via Enrico Giachino 31, 00144, Roma (RM)

Appartamento

TORRINO NORD Trilocale Viale Della Grande Muraglia 95

Viale Della Grande Muraglia 95, 00144, Roma (RM)

Appartamento

MOSTACCIANO A Quadrilocale Via Domenico Jachino 59

Via Domenico Jachino 59, 00144, Roma (RM)

Appartamento

TORRINO SUD Trilocale Via Canton 49

Via Canton 49, 00144, Roma (Rm)

Partners e Affiliazioni

Per i nostri clienti ci affidiamo ai migliori strumenti e servizi. Unità, professionalità, condivisione.

1.png
2.png
3.png
4.png