header-logo2.png MAS SERVICE

In affitto  MOSTACCIANO Bilocale Via Ildebrando Vivanti 148

Via Ildebrando Vivanti 148, 00144, Roma (Rm)  • Mostacciano

€ 1.080,00/mese

  • Proposta in corso

Descrizione

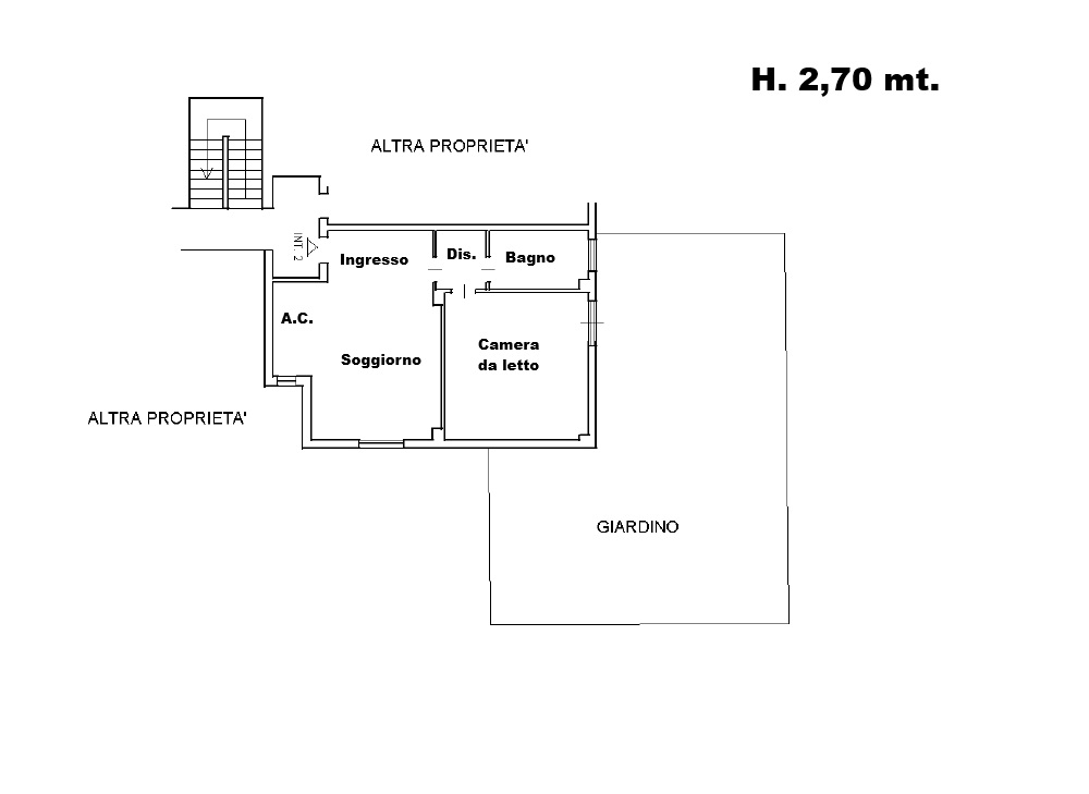
MOSTACCIANO A e più precisamente in Via Ildebrando Vivanti proponiamo appartamento Bilocale di 72 mq. ca, completamente arredata, posto al Piano Terra  in uno stabile in tinta di 3 Piani con ascensore e corte comune.
La zona è eccellentemente collegata alle principali arterie stradali quali il G. R. A, Cristoforo Colombo e la Strada Statale Pontina, numerose linee ATAC per raggiungere la stazione della METRO B “Eur Fermi”.
L'immobile è così composto: Ingresso su soggiorno con angolo cottura, Disimpegno, Camera da letto, Bagno con finestra e Box doccia, Giardino pavimentato di 90 mq. ca.
Il Riscaldamento è autonomo, infissi in doppio vetro PVC, grate di sicurezza, porta blindata.
Le spese di Condominio ammontano a € 85,00 circa mensili.
Completa la proprietà il Posto auto di 13 mq. posto al Piano Terra dello stabile.
Il Contratto è Canone concordato 3+2 con cedolare secca. E' richiesta 1 mensilità di deposito cauzionale. Solo Referenziati con Redditi Dimostrabili. E' richiesto Tutela Affitto Sicuro.
Per autocertificazione Cliente clicca sul seguente link https://www.soloaffittipay.it/referral/register?rpm=92
Per ulteriori informazioni contattare Agenzia SOLO AFFITTI Roma 9 con sede in Viale Della Grande Muraglia 144/146 – EUR Torrino – Tel. 06.5204273 sito: www.mscasa.it | www.soloaffitti.it/agenzie/roma9.it – Email: roma9@soloaffitti.it | soloaffittiroma9@mscasa.it #AFFITTA IN SICUREZZA Proteggi il tuo#affitto con #Affittosicuro #TutelaUno #TutelaEstesa #SoloAffiittiPay

Dettagli Immobile

  • Codice :

  • Tipo :

  • Categoria :

  • Anno Immobile :

  • Locali :

  • Sup.Immobile :

  • A1038

  • Bilocale

  • Appartamento

  • 1975

  • 2

  • 72 m²

  • Prezzo :

  • Località :

  • Tipologia :

  • Piano :

  • Piani dello Stabile :

  • Bagni :

  • 1.080,00€

  • Roma • Mostacciano

  • Appartamento

  • Terra

  • 3

  • 1

Caratteristiche specifiche

  • Esposizione :

  • Luminosità :

  • Rifiniture :

  • In Condominio :

  • Esterna

  • Luminoso

  • Moderne

  • Si

  • Angolo Esposizione :

  • Ascensore :

  • Classe Immobile :

  • Arredamento :

  • Nord - Est - Ovest

  • Si

  • Signorile

  • Si

Informazioni Giuridiche e Costi

  • Contratto di :

  • Stato Giuridico :

  • Tipo Catastale :

  • Affitto

  • Libero

  • A/2

  • Tipo Contratto :

  • Data disponibilità :

  • Costo Condominio :

  • Incarico di Affitto

  • 12/2025

  • 85.00 €

Efficienza Energetica

  • Stato Immobile :

  • Riscaldamento :

  • Classe Energetica :

  • Buono stato

  • Autonomo

  • Classe E

  • Stato Stabile :

  • Normale

Immobili Correlati

Nuovi

Appartamento

TORRINO SUD Trilocale Via Mar Della Cina 281

Via Mar Della Cina 281, 00144, Roma (RM)

Appartamento

TORRINO NORD Quadrilocale Via dell'Orsa Maggiore

Via dell'Orsa Maggiore, 00100, Roma (RM)

Appartamento (Mansarda)

MOSTACCIANO A Mansarda Via Domenico Jachino

Via Domenico Jachino, 00144, Roma (RM)

Appartamento

TORRINO NORD Trilocale Viale Della Grande Muraglia

Viale Della Grande Muraglia, 00144, Roma (Rm)

Partners e Affiliazioni

Per i nostri clienti ci affidiamo ai migliori strumenti e servizi. Unità, professionalità, condivisione.

1.png
2.png
3.png
4.png