header-logo2.png MAS SERVICE

In affitto  TORRINO NORD Quadrilocale Via Malaga

Via Malaga, 00144, Roma (RM)  • Torrino Nord

€ 1.600,00/mese

  • Novità

Descrizione

TORRINO NORD e
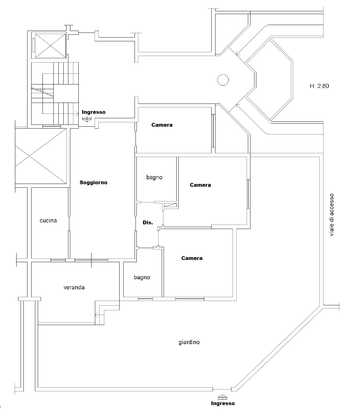
più precisamente in Via Malaga proponiamo appartamento Quadrilocale di 119 mq.
ca., parzialmente arredato, posto al Piano Terra con giardino, in uno stabile
in cortina di 7 Piani, con ascensore e corte comune.


Ubicato in un
quartiere residenziale a ridosso dell’EUR, ben servita dai mezzi pubblici ATAC
e vicina alla Metro B Palasport, oltre alla vicinanza con il GRA. Nelle
immediate vicinanze si trova il centro commerciale Euroma2, farmacie, scuole,
centri sportivi, parchi.


L’immobile è
così composto: Ingresso su Soggiorno, Cucina, Disimpegno, 2 Camere da letto, 1
Cameretta, 2 Bagni di cui uno con finestra e vasca e l’altro cieco con box
doccia, Terrazzo con scala per accesso al Giardino di 150 mq. ca. con
cancello pedonale.


Il
Riscaldamento è autonomo, porta blindata, impianto di climatizzazione
freddo/caldo, grate di sicurezza, travi a vista nel soggiorno e in cucina,
infissi in doppio vetro legno, videocitofono.


Le spese di
Condominio ordinario ammontano a € 125,00 ca. mensili e comprendono l’acqua
fredda sanitaria, salvo conguagli per consumi.

Completano la
proprietà la Cantina di 4 mq. e il Box auto di 20 mq. ca. posti al Piano
Seminterrato dello stabile, raggiungibili direttamente in ascensore, e il Posto
auto scoperto di 12 mq. posto al Piano Terra all’interno della corte comune.


Il Contratto è
Canone concordato 3+2 con cedolare secca. E' richiesta 1 mensilità di deposito
cauzionale. Solo Referenziati con Redditi Dimostrabili. E' richiesto Tutela
Affitto Sicuro.



Per
autocertificazione Cliente clicca sul seguente link
https://www.soloaffittipay.it/referral/register?rpm=92

Per ulteriori
informazioni contattare Agenzia SOLO AFFITTI Roma 9 con sede in Viale Della
Grande Muraglia 144/146 – EUR Torrino – Tel. 06.5204273 sito: www.mscasa.it |
www.soloaffitti.it/agenzie/roma9.it – Email: roma9@soloaffitti.it |
soloaffittiroma9@mscasa.it #AFFITTA IN SICUREZZA Proteggi il tuo#affitto con
#Affittosicuro #TutelaUno #TutelaEstesa #SoloAffiittiPay

Dettagli Immobile

  • Codice :

  • Tipo :

  • Categoria :

  • Anno Immobile :

  • Locali :

  • Sup.Immobile :

  • A904

  • Quadrilocale

  • Appartamento

  • 2005

  • 4

  • 119 m²

  • Prezzo :

  • Località :

  • Tipologia :

  • Piano :

  • Piani dello Stabile :

  • Bagni :

  • 1.600,00€

  • Roma • Torrino Nord

  • Appartamento

  • Terra

  • 7

  • 2

Caratteristiche specifiche

  • Esposizione :

  • Luminosità :

  • Rifiniture :

  • In Condominio :

  • Esterna

  • Luminoso

  • Moderne

  • Si

  • Angolo Esposizione :

  • Ascensore :

  • Classe Immobile :

  • Arredamento :

  • Nord - Est - Ovest

  • Si

  • Signorile

  • Parzialmente arredato

Informazioni Giuridiche e Costi

  • Contratto di :

  • Stato Giuridico :

  • Tipo Catastale :

  • Affitto

  • Libero

  • A/2

  • Tipo Contratto :

  • Data disponibilità :

  • Costo Condominio :

  • Incarico di Affitto

  • 03/2026

  • 125.00 €

Efficienza Energetica

  • Stato Immobile :

  • Riscaldamento :

  • Classe Energetica :

  • Buono stato

  • Autonomo

  • Classe D

  • Stato Stabile :

  • Climatizzazione :

  • Normale

  • Climatizzato

SoloAffitti | Eur -Torrino - Mostacciano

Contatti Agenzia

Visti di recente

Immobili Correlati

Nuovi

Appartamento

TORRINO SUD Trilocale Via Mar Della Cina 281

Via Mar Della Cina 281, 00144, Roma (RM)

Appartamento

MOSTACCIANO Bilocale Via Ildebrando Vivanti 148

Via Ildebrando Vivanti 148, 00144, Roma (Rm)

Appartamento

TORRINO NORD Quadrilocale Via dell'Orsa Maggiore

Via dell'Orsa Maggiore, 00100, Roma (RM)

Appartamento (Mansarda)

MOSTACCIANO A Mansarda Via Domenico Jachino

Via Domenico Jachino, 00144, Roma (RM)

Appartamento

TORRINO NORD Trilocale Viale Della Grande Muraglia

Viale Della Grande Muraglia, 00144, Roma (Rm)

Partners e Affiliazioni

Per i nostri clienti ci affidiamo ai migliori strumenti e servizi. Unità, professionalità, condivisione.

1.png
2.png
3.png
4.png