header-logo2.png MAS SERVICE

In vendita  TORRINO SUD Trilocale Via Canton 49

Via Canton 49, 00144, Roma (Rm)  • Torrino Sud

€ 375.000,00

  • Novità

Descrizione

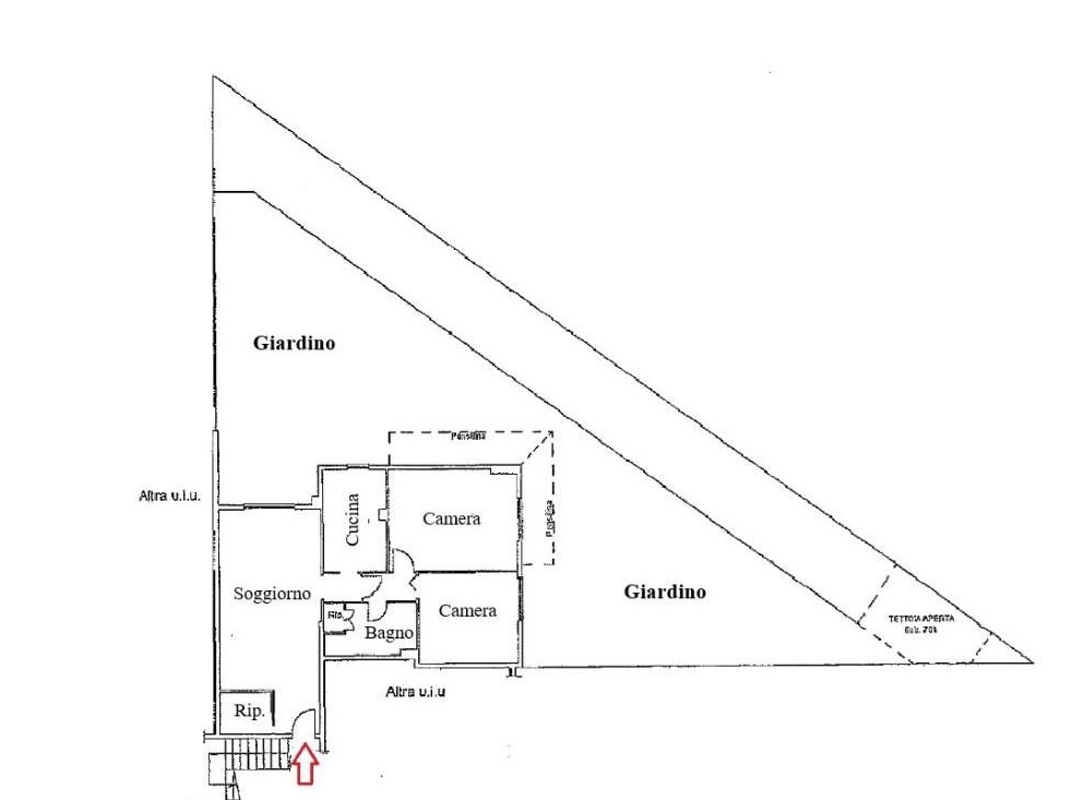
TORRINO SUD e più precisamente in Via Canton proponiamo appartamento Trilocale di 86 mq. ca., posto al Piano Terra in uno stabile di 8 Piani con ascensore, con patio e giardino privato di 200 mq.
Ubicato in una delle zone residenziali più apprezzate dell’area EUR a Roma in un contesto tranquillo e ben curato, caratterizzato da ampi spazi verdi e servizi di quartiere facilmente raggiungibili.
La zona è ben servita da negozi, supermercati, scuole, farmacie, centri sportivi e aree verdi, centri commerciali e numerose attività commerciali.
Dal punto di vista dei collegamenti la posizione è strategica: in pochi minuti si raggiungono Via Cristoforo Colombo e il Grande Raccordo Anulare, che consentono rapidi spostamenti verso il centro di Roma e verso il litorale. L’area è inoltre servita da diverse linee di autobus che collegano rapidamente al quartiere EUR e alla metro linea B.
L'immobile è così composto: Ingresso, ampio soggiorno, Cucina abitabile, 2 Camere da letto, Bagno cieco con box doccia e vano lavatrice, Ripostiglio, Patio, Giardino.
Il Riscaldamento è centralizzato con contabilizzatori di calore, impianto di climatizzazione freddo/caldo, grate di sicurezza, porta blindata, infissi in doppio vetro legno.
Le spese di condominio ammontano a € 80,00 ca. mensili.
Vuoi sapere quanto vale la Tua Casa? Effettuiamo VALUTAZIONI GRATUITE con rilascio di relazione di stima dettagliata. Sede operativa in Viale Della Grande Muraglia 144/146 – EUR Torrino. Visita il nostro sito: www.mscasa.it . *Le presenti informazioni e planimetrie sono meramente indicative e non costituiscono elementi contrattuali. Per qualsiasi esigenza in merito alla vendita o acquisto di un immobile, non esitare a contattarci allo 06.52.04.273 Cell. 320.94.47.838 Email: frimm39160@gmail.com Social: LinkedIN, Facebook, Instagram. Ci siamo. Noi siamo di casa!

Dettagli Immobile

  • Codice :

  • Tipo :

  • Categoria :

  • Anno Immobile :

  • Locali :

  • Sup.Immobile :

  • V1439

  • Trilocale

  • Appartamento

  • 1984

  • 3

  • 86 m²

  • Prezzo :

  • Località :

  • Tipologia :

  • Piano :

  • Piani dello Stabile :

  • Bagni :

  • 375.000,00€

  • Roma • Torrino Sud

  • Appartamento

  • Terra

  • 8

  • 1

Caratteristiche specifiche

  • Esposizione :

  • Luminosità :

  • Rifiniture :

  • In Condominio :

  • Esterna

  • Luminoso

  • Moderne

  • Si

  • Ascensore :

  • Classe Immobile :

  • Arredamento :

  • Si

  • Media

  • No

Informazioni Giuridiche e Costi

  • Contratto di :

  • Stato Giuridico :

  • Tipo Catastale :

  • Vendita

  • Libero

  • A/2

  • Tipo Contratto :

  • Data disponibilità :

  • Costo Condominio :

  • Intera Proprietà

  • 03/2026

  • 80.00 €

Efficienza Energetica

  • Stato Immobile :

  • Riscaldamento :

  • Classe Energetica :

  • Buono stato

  • Centralizzato

  • In attesa di

  • Stato Stabile :

  • Climatizzazione :

  • Normale

  • Climatizzato

FRIMM | Eur -Torrino - Mostacciano

Contatti Agenzia

Visti di recente

Immobili Correlati

Nuovi

Appartamento

EUR Quadrilocale Via Australia

Via Australia , 00144, Roma (Rm)

Appartamento

TORRINO SUD Trilocale Via Nanchino

Via Nanchino, 00144, Roma (RM)

Appartamento

MOSTACCIANO B Trilocale Via Enrico Giachino 31

Via Enrico Giachino 31, 00144, Roma (RM)

Appartamento

TORRINO NORD Trilocale Viale Della Grande Muraglia 95

Viale Della Grande Muraglia 95, 00144, Roma (RM)

Appartamento

MOSTACCIANO A Quadrilocale Via Domenico Jachino 59

Via Domenico Jachino 59, 00144, Roma (RM)

Partners e Affiliazioni

Per i nostri clienti ci affidiamo ai migliori strumenti e servizi. Unità, professionalità, condivisione.

1.png
2.png
3.png
4.png