header-logo2.png MAS SERVICE

In vendita  EUR Bilocale Viale Umberto Tupini

Viale Umberto Tupini , 00144, Roma (RM)  • Eur

€ 449.000,00

  • Novità

Descrizione

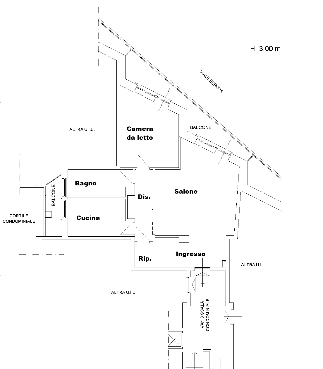
Nel cuore del prestigioso quartiere EUR e precisamente in Viale Umberto Tupini, in un contesto signorile e a pochi passi dalla scalinata dei Santi Pietro e Paolo, proponiamo appartamento Bilocale di 78 mq. ca., posto al 1° Piano in uno stabile in cortina di 5 Piani con ascensore.
L’area si distingue per l’eleganza degli spazi urbani, l’ampiezza dei viali alberati e la presenza di numerosi servizi, oltre alla vicinanza di uffici, attività commerciali, ristoranti, scuole e aree verdi e adiacente al laghetto dell’EUR, ottimamente collegata grazie alla linea B della metropolitana e a diverse linee di trasporto pubblico.
L'immobile è così composto: Ingresso, Soggiorno, Cucina abitabile, Disimpegno con armadio a muro, Camera da letto, Bagno con finestra e box doccia, Balcone.
Il Riscaldamento è autonomo, porta blindata, impianto di climatizzazione freddo/caldo, infissi in doppio vetro legno, tende da sole, serrande elettriche, luce di emergenza.
Le spese di condominio ammontano a € 80,00 ca. e sono comprensive dell'acqua fredda sanitaria.
Completa la proprietà la Cantina di 7 mq. ca. posta al Piano Seminterrato dello stabile.
Vuoi sapere quanto vale la Tua Casa? Effettuiamo VALUTAZIONI GRATUITE con rilascio di relazione di stima dettagliata. Sede operativa in Viale Della Grande Muraglia 144/146 – EUR Torrino. Visita il nostro sito: www.mscasa.it . *Le presenti informazioni e planimetrie sono meramente indicative e non costituiscono elementi contrattuali. Per qualsiasi esigenza in merito alla vendita o acquisto di un immobile, non esitare a contattarci allo 06.52.04.273 Cell. 320.94.47.838 Email: frimm39160@gmail.com Social: LinkedIN, Facebook, Instagram. Ci siamo. Noi siamo di casa!

Dettagli Immobile

  • Codice :

  • Tipo :

  • Categoria :

  • Anno Immobile :

  • Locali :

  • Sup.Immobile :

  • V1444

  • Bilocale

  • Appartamento

  • 1958

  • 2

  • 78 m²

  • Prezzo :

  • Località :

  • Tipologia :

  • Piano :

  • Piani dello Stabile :

  • Bagni :

  • 449.000,00€

  • Roma • Eur

  • Appartamento

  • Terra

  • 5

  • 1

Caratteristiche specifiche

  • Esposizione :

  • Luminosità :

  • Rifiniture :

  • In Condominio :

  • Esterna

  • Luminoso

  • Moderne

  • Si

  • Angolo Esposizione :

  • Ascensore :

  • Classe Immobile :

  • Arredamento :

  • Sud Est

  • Si

  • Signorile

  • No

Informazioni Giuridiche e Costi

  • Contratto di :

  • Stato Giuridico :

  • Tipo Catastale :

  • Vendita

  • Libero

  • A/2

  • Tipo Contratto :

  • Data disponibilità :

  • Costo Condominio :

  • Intera Proprietà

  • 04/2026

  • 80.00 €

Efficienza Energetica

  • Stato Immobile :

  • Riscaldamento :

  • Classe Energetica :

  • Buono stato

  • Autonomo

  • Classe E

  • Stato Stabile :

  • Climatizzazione :

  • Normale

  • Climatizzato

FRIMM | Eur -Torrino - Mostacciano

Contatti Agenzia

Visti di recente

Immobili Correlati

Nuovi

Appartamento

TORRINO SUD Trilocale Via Nanchino

Via Nanchino, 00144, Roma (RM)

Appartamento

MOSTACCIANO B Trilocale Via Enrico Giachino 31

Via Enrico Giachino 31, 00144, Roma (RM)

Appartamento

TORRINO NORD Trilocale Viale Della Grande Muraglia

Viale Della Grande Muraglia, 00144, Roma (RM)

Appartamento

MOSTACCIANO A Quadrilocale Via Domenico Jachino 59

Via Domenico Jachino 59, 00144, Roma (RM)

Appartamento

TORRINO SUD Trilocale Via Canton 49

Via Canton 49, 00144, Roma (Rm)

Partners e Affiliazioni

Per i nostri clienti ci affidiamo ai migliori strumenti e servizi. Unità, professionalità, condivisione.

1.png
2.png
3.png
4.png